ALONISSOS. – Aghios Dimitrios - 2000
Informations Générales
Numéro de la notice
1096
Année de l'opération
2000
Chronologie
Mots-clés
Bains - Basilique - Canalisation - Peinture - Revêtements (mur et sol) - Édifice religieux - Installation hydraulique
Nature de l'opération
Institution(s)
Localisation
Toponyme
Halonisos
Halonisos
Notices et opérations liées
19992000
Description
Deux monuments ont été explorés à Aghios Dimitrios à Aloninissos, les vestiges d’une basilique protobyzantine et ceux d’un édifice de bains :
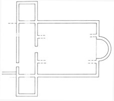
- la basilique a fait l’objet d’une fouille en 1999 et 2000 (des nettoyages avaient été effectués depuis 1998). Il s’agit d’une basilique à trois nefs, abside saillante et narthex, avec deux pièces saillantes au Nord et au Sud (fig. 1). Les nombreux fragments de colonnes sur le site indiquent que le naos était divisé en trois nefs par deux colonnades. Le narthex communique avec le naos par une porte centrale et avec les deux pièces au Nord et au Sud par deux baies. Les murs, conservés jusqu’à 1,50 m de hauteur, sont construits en blocs grossièrement taillés, joints par un mortier de chaux. Les sols ne sont pas conservés. – Parmi le matériel recueilli, on signale de nombreux éléments architecturaux en marbre (fragments de colonnes, de parapets, de chapiteaux ioniques, d’impostes, de colonnettes doubles), des fragments d’enduits peints, des tuiles et de la céramique.
- le nettoyage de l’édifice de bains a fait apparaitre trois conques (fig. 2) : au Sud, à l’Est et à l’Ouest. Un édifice moderne est construit sur le côté Nord du bain. Les murs sont conservés à faible hauteur et sont enduits d’un mortier hydraulique. Parmi le matériel recueilli, on signale des quantités de céramique et de tuiles, ainsi que des fragments de canalisations d’hypocaustes.
Auteur de la notice
Catherine Bouras . - Dir. scientifique : D. MULLIEZ, C. AUBERT
Références bibliographiques
Deriziotis, L., ΑD 55 (2000) [2009], p. 527-528.
Légende graphique :
localisation de la fouille/de l'opération
localisation du toponyme
polygone du toponyme Chronique
Fonctionnalités de la carte :
sélectionner un autre fond de plan
se rapprocher ou s'éloigner de la zone
afficher la carte en plein écran
Date de création
2010-09-08 00:00:00
Dernière modification
2023-10-04 12:39:13




