ZAKRO. - 1977
En 1977 les fouilles de la Société archéologique, conduites par , ont principalemenl porté sur les bâtiments qui bordent la rue du Port.
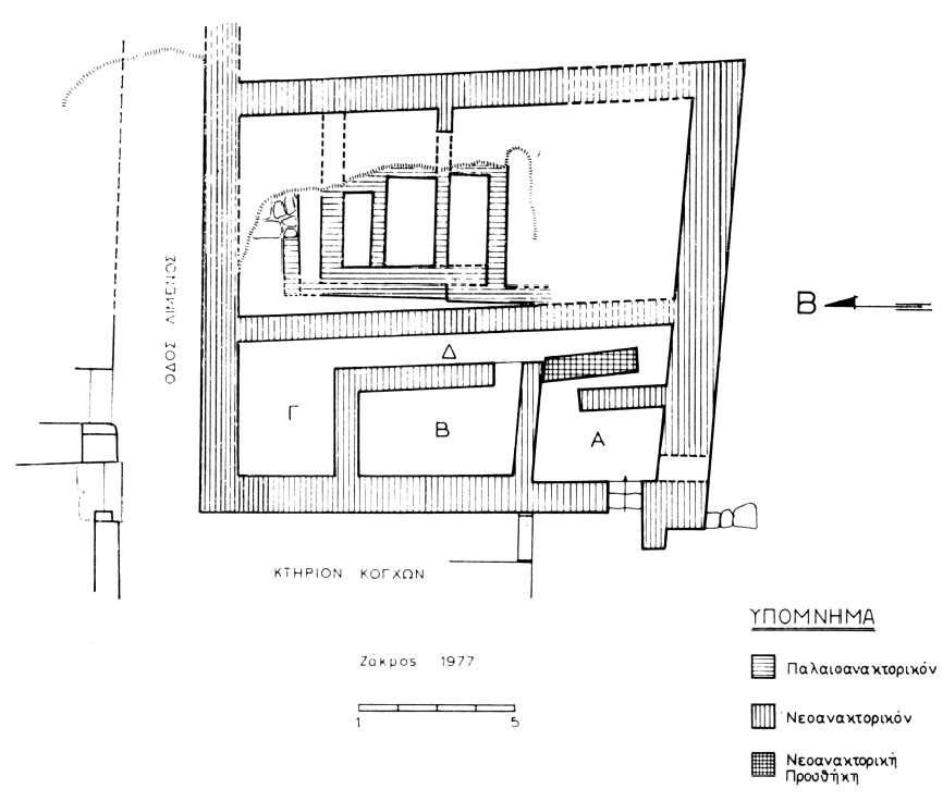
Bâtiment Est. — Le bâtiment situé immédiatement à l'Est de la Maison aux niches (fig. 229) est divisé en deux par un mur Nord/Sud. La partie Ouest se compose de quatre pièces (A, Β, Γ, Ε) qui communiquent par un étroit corridor (Δ). L'ensemble fut occupé pendant le MR I A et, au MR I Β, seuls la pièce A et le corridor Δ furent réutilisés après avoir été légèrement remaniés. Dans la pièce A on a retrouvé un grand nombre de vases (cent trente petits bols coniques, des cruches, des passoires, des louches) et d'ustensiles domestiques en terre cuite, en métal ou en os. Dans le corridor Δ, outre les vases, on a recueilli un kernos en pierre de type prépalatial (fig. 227), des moules, des poids, etc. La pièce Γ n'a livré qu'un tout petit nombre d'objets. Dans la pièce B, où les traces de l'incendie qui ravagea l'édifice étaient particulièrement intenses, le mobilier de l'étage se composait essentiellement d'objets de toilette et de parure féminines : petits vases en céramique, en pierre ou en faïence (fig. 228), fibules, miroir et spatule en bronze, peignes en ivoire, etc.
Dans la partie orientale du bâtiment les vestiges MR I A étaient beaucoup moins bien conservés. Ils recouvraient les murs d'une construction de l'époque des premiers palais faite de plusieurs petites chambres accolées.
Bâtiment au Nord de la rue du Port. — La fouille de la terrasse moyenne a mis au jour une dizaine de pièces appartenant à ce vaste ensemble de l'époque des seconds palais (fig. 230). Le matériel était abondant, sinon toujours bien conservé. Sous le sol des pièces occidentales, on a pu identifier deux états de construction de la période précédente.
Divers. — Dans un fossé de la pièce LXVIII du palais on a recueilli un lot de céramique MM I A, notamment un milk-jug du style de Kamarès pourvu d'un bec ponté.
Dans la région Sud, le dégagement du péribole primitif et du mur extérieur qui le double a progressé vers le Nord-Ouest. Le passage entre les deux murs a été déblayé. La céramique remonte à la transition MM III Β - MR I A ou plus haut encore jusqu'à l'époque prépalatiale. Ergon (1977), p. 185-195.
Légende graphique :
localisation de la fouille/de l'opération
localisation du toponyme
polygone du toponyme Chronique
Fonctionnalités de la carte :
sélectionner un autre fond de plan
se rapprocher ou s'éloigner de la zone
afficher la carte en plein écran




