THÈBES DE PHTIOTIDE. - Nea Anchialos - 1986
Nea Anchialos
Sur toute l’étendue du terrain exproprié, au Sud-Ouest des trois basiliques, P. Lazaridis a achevé cette année le dégagement du baptistère, de l'édifice absidal et du rempart antique.
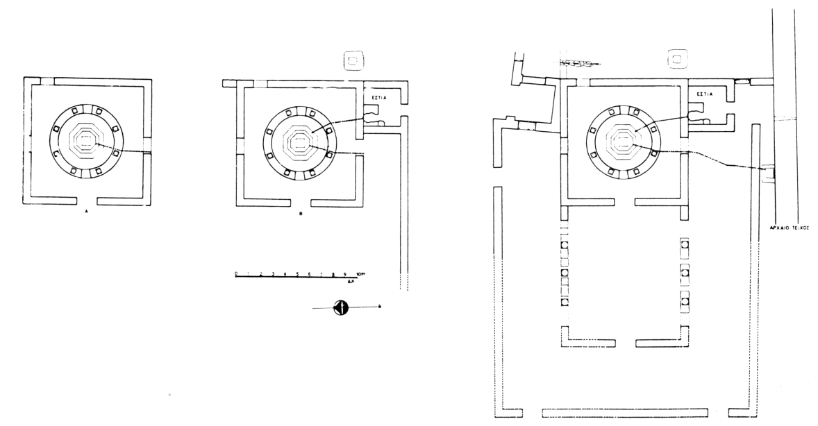
La fouille de la grande salle rectangulaire qui jouxte à l’Ouest le baptistère proprement dit, a produit des éléments des deux colonnades latérales (fragments de colonnes lisses, chapiteaux ioniques stylisés à imposte) et du placage en marbre des murs. Diverses observations d’ordre architectural conduisent à restituer trois phases dans la construction du baptistère (fig. 39) : à la première appartient la salle carrée de 9,20 m de côté avec son péristyle, sa cuve centrale et son conduit d’évacuation ; pendant la deuxième phase on ajouta, au Sud, le foyer et le conduit d’alimentation en eau chaude ; la troisième est représentée par la construction de la grande salle Ouest, des trois portiques qui l’entourent et d’un petit compartiment symétrique à celui du foyer, dans l’angle Nord-Est. Pendant cette dernière phase, le conduit d’évacuation de la cuve fut prolongé jusqu’au rempart antique, où il aboutit à un regard scellé par une dalle de marbre qui porte l’inscription [Άρι( ?)]στίων καί Ρουφείνα τή έκκλησία.
La réfection, par les services municipaux, des canalisations qui passent sous la rue moderne, au Nord-Est du baptistère, a fourni l’occasion d’une fouille limitée, qui a permis de mieux comprendre comment les catéchumènes passaient de l’atrium de la basilique au baptistère.
Dans l’édifice absidal, qui fut construit ultérieurement à l’Est de celui-ci, on a trouvé de nombreux fragments architecturaux qui permettent de restituer, du côté Sud, une colonnade à deux étages. La fouille a également produit des morceaux de fresques et de mosaïques murales, des bijoux en argent et 125 monnaies. On a d’autre part extrait du puits situé près de la naissance Nord de l’abside environ 200 fragments de marbres sculptés. Ergon 1986 (1987), p. 87-90.
Légende graphique :
localisation de la fouille/de l'opération
localisation du toponyme
polygone du toponyme Chronique
Fonctionnalités de la carte :
sélectionner un autre fond de plan
se rapprocher ou s'éloigner de la zone
afficher la carte en plein écran




