AZOROS. – Aghios Athanassios - 2000
Informations Générales
Numéro de la notice
1054
Année de l'opération
2000
Chronologie
Mots-clés
Nature de l'opération
Institution(s)
Localisation
Toponyme
Azoros, Vouvala
Azoros, Vouvala
Notices et opérations liées
2000
Description
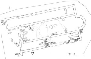
On signale la découverte, à Aghios Athanassios, d’une basilique à trois nefs, ainsi que d’une nécropole composée de 25 tombes à ciste, dont vingt ont été découvertes dans la nef Sud : il s’agissait de sépultures d’enfants (fig. 1). Le sol de l’église est conservé à certains endroits : il est dallé de plaques de marbre à l’Ouest, tandis qu’au centre du naos, un mortier hydraulique a pu servir de base pour une mosaïque.
Auteur de la notice
Catherine Bouras . - Dir. scientifique : D. MULLIEZ, C. AUBERT
Références bibliographiques
Deriziotis, L., Kougioumtzoglou, S., Χριστιανική Περραιβία, τοπογραφικές και ανασκαφικές έρευνες, ΑΕΘΣΕ 1 (2003) [2006], p. 390.
Deriziotis, L., ΑD 55 (2000) [2009], p. 525-526.
Légende graphique :
localisation de la fouille/de l'opération
localisation du toponyme
polygone du toponyme Chronique
Fonctionnalités de la carte :
sélectionner un autre fond de plan
se rapprocher ou s'éloigner de la zone
afficher la carte en plein écran
Date de création
2010-09-04 00:00:00
Dernière modification
2023-10-04 12:23:26




