Kato Achaia, 3rd side road Agiou Ioannou - 2007
Informations Générales
Numéro de la notice
8426
Année de l'opération
2007
Chronologie
Mots-clés
Nature de l'opération
Institution(s)
Localisation
Toponyme
Kato Achaia
Kato Achaia
Notices et opérations liées
2007
Description
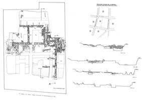
Kato Achaia, 3rd side road Agiou Ioannou, Ο.Τ. 267 (property of H. Petropoulou and D. Nikolopoulou). Vasiliki Tsaknaki (ΣΤ’ ΕΠΚΑ) reports on the excavation of architectural remains (Fig. 1) dated from the mid-Hellenistic to the 1st c. AD. They were closely associated with the industrialised part of ancient Dyme. The excavations identified road surfaces, building remains, jointed walls (Fig. 2), a pipe and a pit with finds dated from the Classical to Early Roman periods.
Auteur de la notice
Michael Loy
Références bibliographiques
ADelt 63 (2008) Chr., 502-503
Légende graphique :
localisation de la fouille/de l'opération
localisation du toponyme
polygone du toponyme Chronique
Fonctionnalités de la carte :
sélectionner un autre fond de plan
se rapprocher ou s'éloigner de la zone
afficher la carte en plein écran
Date de création
2020-06-04 12:51:59
Dernière modification
2024-01-18 09:27:00




