Tsoukalaiika, Anemomylos, motorway ring road Patras-Pyrgos - 2007
Informations Générales
Numéro de la notice
8415
Année de l'opération
2007
Chronologie
Mots-clés
Nature de l'opération
Institution(s)
Localisation
Toponyme
Tsoukalaiika
Tsoukalaiika
Notices et opérations liées
20012007
Description
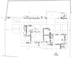
Tsoukalaiika, Anemomylos, motorway ring road Patras-Pyrgos (property of G. Trombouki). Adamantia Vasilogamvrou, Antonia Nikolakopoulou and Vasiliki Tsaknaki (ΣΤ’ ΕΠΚΑ) report on the discovery of walls belonging to three occupation phases dated from the 4th to the end of the 3rd centuries BC. The earliest phase was associated with a floor of beaten earth, pebbles and crushed tiles. In one case a wall had been plastered, while additional finds included black-glazed and unpainted pottery, lamps, various bronze items, fragments of figurines and bronze coins. The excavators identified the settlement as the ancient town of Olenos.
Auteur de la notice
Michael Loy
Références bibliographiques
ADelt 63 (2008) Chr., 492-494
Légende graphique :
localisation de la fouille/de l'opération
localisation du toponyme
polygone du toponyme Chronique
Fonctionnalités de la carte :
sélectionner un autre fond de plan
se rapprocher ou s'éloigner de la zone
afficher la carte en plein écran
Date de création
2020-06-04 12:25:47
Dernière modification
2024-01-18 09:23:48




