Kato Achaia, Palaion Patron Germanou Street - 2006
Informations Générales
Numéro de la notice
8377
Année de l'opération
2006
Chronologie
Mots-clés
Nature de l'opération
Institution(s)
Localisation
Toponyme
Kato Achaia
Kato Achaia
Notices et opérations liées
Description
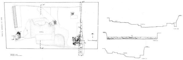
Kato Achaia, Palaion Patron Germanou Street, Ο.Τ. 73 (property of Th. Siaka). Vasiliki Tsaknaki (ΣΤ’ ΕΠΚΑ) reports on the discovery of a wall (1) aligned on a N-S axis and 12 m in length, which continued into the adjacent property (Fig. 1). It consisted of rows of carefully made limestone, sandstone and amygdalopetra limestone blocks, probably reused from a public building in ancient Dyme. Another two walls were investigated together with a domestic pit (10.70×6.20 m.). In the south-western corner of the property was a well (0.90 m. internal diameter) dated to the Early Hellenistic period and constructed of sandstone blocks. In the northern part of the property was excavated part of an unfluted column.
Auteur de la notice
Michael Loy
Références bibliographiques
ADelt 62 (2007) Chr., 500-501
Légende graphique :
localisation de la fouille/de l'opération
localisation du toponyme
polygone du toponyme Chronique
Fonctionnalités de la carte :
sélectionner un autre fond de plan
se rapprocher ou s'éloigner de la zone
afficher la carte en plein écran
Date de création
2020-06-04 10:59:15
Dernière modification
2024-01-17 10:07:02




