ANCIENT SIKYON - 2006
Informations Générales
Numéro de la notice
4988
Année de l'opération
2006
Chronologie
Mots-clés
Citerne - Lampe - Monnaie - Habitat - Production/extraction - Mobilier et aménagement du bâti - Espaces
Nature de l'opération
Institution(s)
Localisation
Toponyme
Sikyon (Kiato), Vassilika (usuel)
Sikyon (Kiato), Vassilika (usuel)
Notices et opérations liées
2006
Description
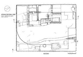
Ancient Sikyon, Vasiliko, football stadium (property of S. Thanopoulou). A.-M. Anagnostopoulou (ΛΖ’ ΕΠΚΑ) reports the discovery of a quarry with some 15 quarry pits ranging in depth from 0.15-2.06m. The area was subsequently used for settlement: at least six rooms were identified, defined by eight roughly made walls of fieldstones and worked blocks in secondary use. A flight of five rock-cut steps, a built rectangular cistern subsequently used for refuse, a further rock-cut cistern lined with cement, a well, and a rock-cut channel were also found. Finds comprise plain domestic pottery, Hellenistic and Roman black glaze pottery, 11 bronze coins, loomweights and terracotta lamps.
Auteur de la notice
Catherine MORGAN
Références bibliographiques
ADelt 61 (2006) Chr., 469-70
Légende graphique :
localisation de la fouille/de l'opération
localisation du toponyme
polygone du toponyme Chronique
Fonctionnalités de la carte :
sélectionner un autre fond de plan
se rapprocher ou s'éloigner de la zone
afficher la carte en plein écran
Date de création
2015-07-17 00:00:00
Dernière modification
2023-10-19 12:46:14




