THESSALONIQUE. - Rue Zephyron - 2005
Informations Générales
Numéro de la notice
4793
Année de l'opération
2005
Chronologie
Mots-clés
Nature de l'opération
Institution(s)
Localisation
Notices et opérations liées
2005
Description
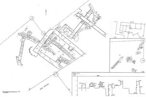
Près du rempart Ouest de la ville de Thessalonique, E. Makri (9e éphorie des antiquités byzantines) a mené en 2005 une fouille de sauvetage sur le terrain du 12, rue Zephyron et mis au jour des vestiges appartenant à plusieurs phases de construction, échelonnées entre l’époque romaine tardive et l’époque tardobyzantine (fig. 1-3).
Un bâtiment allongé (7,95 x 4,82 m), orienté Est-Ouest, dégagé au centre du terrain, correspond à la première phase, datée du IVe s. apr. J.-C. Ses murs sont renforcés à l’intérieur par des contreforts, ce qui suggère que le bâtiment avait une couverture en berceau. Le sol était en mortier.
Une maison fut construite au VIIe s. dans la partie Nord du terrain. Dans une phase suivante (époque médiobyzantine), elle fut étendue vers le Sud et connut plusieurs réaménagements.
Deux petites citernes (dim. 1 x 1,70 et 0,55 x 0,60 m), en moellons et mortier de tuileau, ainsi qu’un mur en moellons et des canalisations maçonnées appartiennent à un atelier, peut-être une tannerie, de l’époque tardobyzantine. La fonction artisanale du site se poursuivit à l’époque postbyzantine.
Auteur de la notice
Catherine Bouras
Références bibliographiques
AD 60 (2005), B2, p. 671-672.
Légende graphique :
localisation de la fouille/de l'opération
localisation du toponyme
polygone du toponyme Chronique
Fonctionnalités de la carte :
sélectionner un autre fond de plan
se rapprocher ou s'éloigner de la zone
afficher la carte en plein écran
Date de création
2015-06-16 00:00:00
Dernière modification
2023-10-19 07:59:46




