KATO ACHAIA - 33 P.P. Germanou Street - 2001
Informations Générales
Numéro de la notice
3905
Année de l'opération
2001
Chronologie
Mots-clés
Nature de l'opération
Institution(s)
Localisation
Toponyme
Kato Achaia
Kato Achaia
Notices et opérations liées
2001
Description
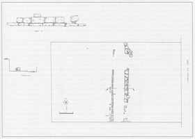
Kato Achaia, 33 P.P. Germanou Street (Batzali property). A. Vasilogamvrou (Στ’ ΕΠΚΑ) reports the discovery of an Early Hellenistic stone wall of a substantial structure, plus two terracotta water channels (one closed and one open), which continue into neighbouring plots.
Auteur de la notice
Catherine MORGAN
Références bibliographiques
ADelt 56-59 (2001-2004) B4, 516-18.
Légende graphique :
localisation de la fouille/de l'opération
localisation du toponyme
polygone du toponyme Chronique
Fonctionnalités de la carte :
sélectionner un autre fond de plan
se rapprocher ou s'éloigner de la zone
afficher la carte en plein écran
Date de création
2013-10-20 00:00:00
Dernière modification
2023-10-16 09:51:35




