DION - 2003
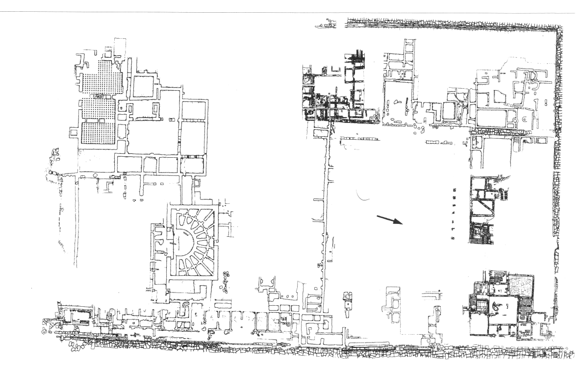
Forum. — En 2002 et 2003, les travaux ont été centrés sur le forum, qui occupe la première insula du côté Sud (180 x 12 m) et comportait une cour dallée (58 x 6 m), des édifices publics et des portiques au moins sur trois de ses côtés (fig. 137). La partie Nord du forum comprenait une installation thermale qui était sans doute en rapport avec le bâtiment à cour centrale polygonale situé juste au Nord de la rue A et pourvu d'un sol en mosaïque avec scène de lutte (v. BCH 124 [2000] Chron., p. 891) (fig. 138) ; ce bâtiment doit sans doute être identifié comme la palestre de ces thermes. La poursuite des fouilles dans les thermes eux-mêmes a mis au jour l'entrée monumentale Est de l'édifice, la grande salle de réception décorée de peintures murales à motifs végétaux, le frigidarium, le caldarium, le praefurnium et un espace à hypocauste qui pourrait être le tepidarium. Dans la partie Nord-Ouest du forum on a achevé la fouille de la grande salle d'un complexe qui devait être lié aux thermes adjacents. Dans la partie Ouest, on a poursuivi l'exploration du complexe aux mosaïques et aux deux cours qui occupe la terrasse au Sud du Sébasteion.
Dans le secteur de l'hydraulos la fouille a été centrée sur la partie Sud-Ouest du complexe, où l'on a mis au jour plusieurs espaces, dont un portique et deux pièces allongées renfermant des poids en plomb et en pierre, un marteau de porte orné d'une tête d'Héraclès et des monnaies en bronze.
Sanctuaire de Zeus Hypsistos. — En 2003, des travaux d'élargissement du lit de la rivière Vaphyras ont mis au jour, à la hauteur du sanctuaire d'Isis, de nombreux vestiges appartenant à un sanctuaire dédié à Zeus Hypsistos. L'esplanade du sanctuaire est dominée par le temple, orienté au Sud ; à 7 m de son entrée se trouve une construction rectangulaire (3,50 x 3 m) qui doit être l'autel. Le temple est constitué d'une cella entourée de stylobates sur trois côtés ; contre le mur du fond (Nord) de la cella se trouvait la base de la statue cultuelle portant deux plaques de marbre inscrites fixées sur sa face antérieure ; l'une mentionne les noms de ceux qui furent élus comme responsables des « δοχών » de Zeus Hypsistos, tandis que l'autre se réfère aux terrains associés au sanctuaire. À l'intérieur de la cella ont aussi été trouvés un aigle en marbre et quatre autres inscriptions (dédicaces). La statue cultuelle en marbre du dieu, tombée à terre, a été retrouvée à l'Est de sa base ; il s'agit d'une copie d'époque impériale du type de Zeus trônant, dont l'origine remonte au chef-d'œuvre de Phidias à Olympie (fig. 139). Le sol du temple est pavé d'une mosaïque ornée de motifs géométriques, d'un taureau blanc, de doubles haches et de corbeaux. Contre la face extérieure Ouest du temple se trouve une citerne ; il semble que l'eau jouait un rôle important dans le culte du dieu. L'esplanade est entourée de portiques qui, au moins sur les côtés Ouest et Nord, renfermaient des pièces pour les besoins du sanctuaire.
De nombreuses offrandes, trouvées dans les limites du sanctuaire, confirment aussi l'identification de la divinité titulaire : une colonnette inscrite (Διὶ Ύψίστω | Λ. Τρέβιος | Λέων | ευξάμενος) portant un chapiteau ionique surmonté d'un aigle aux ailes déployées (fig. 140), un fronton inscrit (Διὶ Ύψίστω ευχήν | Γ. Ολύμπιος Παυλος ιερητ[εύσας]) orné d'un aigle en relief et d'une paire d'oreilles (fig. 141) et une lékanè inscrite ([Δ]ιὶ Ύψίστωι Δημήτριος | ευχήν). ΑΕΜΘ 16 (2002) [2004], p. 417-425 ; 17 (2003) [2005], p. 417-424 [D. Pandermalis] .
Sanctuaire de Déméter. — En 2002 et 2003 les travaux ont porté sur les secteurs Est et Sud du sanctuaire. Dans le secteur Est on a dégagé un long mur (conservé sur 26 m) d'époque impériale qui appartenait sans doute au stylobate d'un portique délimitant le sanctuaire de ce côté.
Dans le secteur Sud on a poursuivi l'exploration d'un grand complexe de trois pièces en enfilade dont deux (au Nord) – renfermant cinq meules, deux mortiers et plusieurs fragments d'amphores – étaient sans doute destinées au stockage et au traitement des céréales ; plusieurs fragments d'inscriptions avaient été réutilisés dans leur construction, dont une liste de noms provenant d'un sanctuaire de la région. La pièce la plus au Sud appartenait aux latrines déjà en grande partie fouillées en 1984 (v. BCH 109 [1985] Chron., p. 810). De construction soignée (bel appareil, sol en mosaïque) elles pouvaient recevoir une trentaine de personnes à la fois. Leur présence suggère que ce secteur était très fréquenté ; les fouilleurs pensent qu'elles servaient notamment aux fidèles du sanctuaire d'Asklépios qui se trouve juste au Sud.
La proximité des sanctuaires de Déméter et d'Asklépios ne peut être fortuite, l'association des cultes de ces deux divinités étant attestée par des sources écrites et des données archéologiques.
Des fouilles menées entre les deux sanctuaires, pour mieux éclairer cette connexion, ont mis au jour une canalisation construite (long. 31 m) se dirigeant vers les latrines et des tronçons de trois puissants murs parallèles (Nord-Sud) qui pourraient appartenir à un portique ; la poursuite de leur fouille devrait fournir plus d'éléments sur leur identification. ΑΕΜΘ 17 (2003) [2005], p. 425-434 [S. Pingiatoglou].
Légende graphique :
localisation de la fouille/de l'opération
localisation du toponyme
polygone du toponyme Chronique
Fonctionnalités de la carte :
sélectionner un autre fond de plan
se rapprocher ou s'éloigner de la zone
afficher la carte en plein écran




