Athens. 96 Ermou - 2011
Informations Générales
Numéro de la notice
8538
Année de l'opération
2011
Chronologie
Mots-clés
Nature de l'opération
Institution(s)
Localisation
Notices et opérations liées
2011
Description
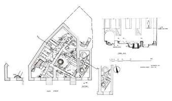
Athens. 96 Ermou. Georgios Michalopoulos (Γ’ ΕΠΚΑ) reports on excavations undertaken on this large plot (144 metres squared).
There was a drainage ditch dated to the Classical period, made of irregular slabs of alabaster and limestone. It was repaired in the Roman period. The pipe is oriented NE, and is 13.50m long and 1m wide.
Room 3 was discovered, 1.35 x 2.85m and dating to the Hellenistic period. The walls of the room had been cut by a later Roman phase of walls. In the NE of the room, there was a small water basin.
There was also a Roman period house consisting of two rooms, oriented NE and containing 13 pipes.
Room 1 had dimensions 6.90 x 5.40m , containing a small cistern. Room 2 had dimensions 4.60 x 3.60m, slightly destroyed by the foundations of a modern house. The walls include many stones in secondary use, including architectural fragments, pieces of marble stelai, and pieces of tile and brick.
SE of the room there was a Byzantine silo, built of masonry, tiles, and plaster.
There was a drainage ditch dated to the Classical period, made of irregular slabs of alabaster and limestone. It was repaired in the Roman period. The pipe is oriented NE, and is 13.50m long and 1m wide.
Room 3 was discovered, 1.35 x 2.85m and dating to the Hellenistic period. The walls of the room had been cut by a later Roman phase of walls. In the NE of the room, there was a small water basin.
There was also a Roman period house consisting of two rooms, oriented NE and containing 13 pipes.
Room 1 had dimensions 6.90 x 5.40m , containing a small cistern. Room 2 had dimensions 4.60 x 3.60m, slightly destroyed by the foundations of a modern house. The walls include many stones in secondary use, including architectural fragments, pieces of marble stelai, and pieces of tile and brick.
SE of the room there was a Byzantine silo, built of masonry, tiles, and plaster.
Auteur de la notice
Michael Loy
Références bibliographiques
ADelt 69 (2014), Chr., 95–7
Légende graphique :
localisation de la fouille/de l'opération
localisation du toponyme
polygone du toponyme Chronique
Fonctionnalités de la carte :
sélectionner un autre fond de plan
se rapprocher ou s'éloigner de la zone
afficher la carte en plein écran
Date de création
2020-07-31 09:36:32
Dernière modification
2024-01-19 09:26:44




