Plaka - 2012
Informations Générales
Numéro de la notice
6985
Année de l'opération
2012
Chronologie
Mots-clés
Nature de l'opération
Institution(s)
Localisation
Notices et opérations liées
2012
Description
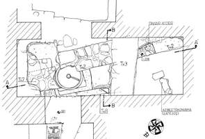
Plaka, Polygnotou 2-4 (property of the Greek Ministry of Culture and Sport). Nikoletta Saraga (Α’ ΕΠΚΑ) and Kleio Tsoga (Α’ ΕΠΚΑ) report on the discovery of antiquities in the basement and ground floor of this listed building. 21 post-Byzantine pithoi were excavated in the basement of the house (Figs 1,2,3) along with an earlier cistern, a well, a drain, part of a wall, and 2 Byzantine and post-Byzantine silos. The wall and drain (Fig. 4), which contained late Hellenistic pottery sherds, are parts of a Roman road running N-S.
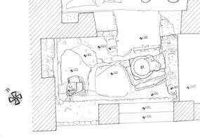
Parts of three walls were excavated in the area of the modern stairwell (Fig. 5). The base of a large Ionic column had been used as building material for one of the walls (Fig. 6).
Finally, part of a Byzantine silo and more walls were found on the ground floor of the building (Fig 7). A Doric column capital had been used as building material for one of these walls, which dates to post-Byzantine times (Fig. 8).
Parts of three walls were excavated in the area of the modern stairwell (Fig. 5). The base of a large Ionic column had been used as building material for one of the walls (Fig. 6).
Finally, part of a Byzantine silo and more walls were found on the ground floor of the building (Fig 7). A Doric column capital had been used as building material for one of these walls, which dates to post-Byzantine times (Fig. 8).
Auteur de la notice
Chryssanthi PAPADOPOULOU
Références bibliographiques
ADelt 68 (2013) Chr., 32-36
Légende graphique :
localisation de la fouille/de l'opération
localisation du toponyme
polygone du toponyme Chronique
Fonctionnalités de la carte :
sélectionner un autre fond de plan
se rapprocher ou s'éloigner de la zone
afficher la carte en plein écran
Date de création
2019-09-24 16:10:25
Dernière modification
2025-12-03 09:01:04
Figure(s)




