Christianoi - 2011
Christianoi, Church of the Metamorphosis of the Saviour. Michali Kappas and Sophia Sakkari (26th EBA) report on continuing excavation at this location.
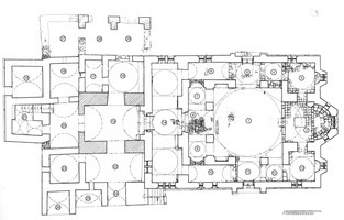
1. Excavations on the Bishop’s residence (Fig. 1).
The Episcopate consists of 9 areas of at least 3 building phases, 7 of which are roofed with semi-cylindrical vaults and 2 (16, 23) covered with hemispherical (φουρνικά) vaults. The oldest is Room 15, a monumental propylon in front of the main entrance to the church, above which a belfry was erected. In the next phase, Room 16 and Room 17 were added to the N of Room 15. In the final phase, Rooms 18-26 were added. Inside the rooms, stone pavement was found made with small slab-like stones. In Room 15, a monumental stone stairway (Fig. 2) of the W entrance to the church was discovered in very poor condition. In Rooms 20, 23, 29 remains of walls and floors of earlier phases. An undated bronze coin was found in Room 20. In Room 24, the entrance to the Episcopate, a carved porous threshold was located. Cleaning work and removal of the fill to reveal the edges of the roof was carried out (Figs. 3-7) in order to study the roof system.
2. Church
Inside the church only the surface fill was removed. In the narthex, tile graves were found. In the rest of the church no graves were discovered, but it is possible that they exist at deeper levels. At the holy bema, various building phases were found. In contact with the S wall of the diakonikon, a carved space used as an ossuary was found. Next to the bones that came from secondary inhumations, several small finds were discovered. A wall with E-W direction was revealed after the removal of the clay slabs of the floor in the central section of the holy bema (Fig. 8). In the prothesis, a wall was found parallel to the one previously mentioned and was of similar width. They are remains of the initial 5 partitions of the bema, which is typical of octagonal churches, confirming the suggestions of Vogiatsi and Delinikola that this church developed from an octagonal structure.
Small finds: many are related to the marble decoration of the main church (Fig. 9) and the marble floor; fragments of clay pots (glazed [Fig. 10], decorated and undecorated, utilitarian, etc.), metal objects (plates and nails), fragments of glass objects. Only 9 coins were found, of which 2 are contemporary. From the other 7, one is silver and the other 6 are bronze. Contrary to the older scholarly suggestion that the church was painted completely with frescos, there were very few fragments of wall paintings found. Finally, part of an inscribed decree stele was found built into the stepped pedestal of the holy bema.
[Entry created by E. Strazdins]
ADelt 66 (2011), Chr., 298-302.
Légende graphique :
localisation de la fouille/de l'opération
localisation du toponyme
polygone du toponyme Chronique
Fonctionnalités de la carte :
sélectionner un autre fond de plan
se rapprocher ou s'éloigner de la zone
afficher la carte en plein écran




