Ancient Sikyon, Syriona - 2008
Informations Générales
Numéro de la notice
6936
Année de l'opération
2008
Chronologie
Mots-clés
Nature de l'opération
Institution(s)
Localisation
Toponyme
Sikyon (Kiato), Vassilika (usuel)
Sikyon (Kiato), Vassilika (usuel)
Notices et opérations liées
Description
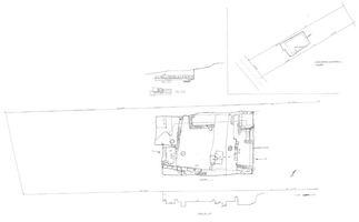
Ancient Sikyon, Syriona (property of Anca Anna Florina). V. Papathanasiou (ΛΖ’ ΕΠΚΑ) reports on the discovery of walls belonging to three partly preserved buildings, as well as clay floors (Fig. 1). The walls were made of rubble, carefully shaped blocks and mortar and date from the Classical to Byzantine periods. Also located was a rectangular trench sunk into the bedrock, an Early Hellenistic cist child burial and two wells (Fig. 2). In the eastern side of the trench were found in situ three large blocks which probably derived from a monumental building or defensive walls. Additional finds included unpainted and black-glazed pottery sherds, eight bronze coins, a bronze pin, two iron nails, a bronze earing, clay anthropomorphic and zoomorphic figurines and loom weights.
Auteur de la notice
John BENNET
Références bibliographiques
ADelt 63 (2008) Chr., 548-550
Légende graphique :
localisation de la fouille/de l'opération
localisation du toponyme
polygone du toponyme Chronique
Fonctionnalités de la carte :
sélectionner un autre fond de plan
se rapprocher ou s'éloigner de la zone
afficher la carte en plein écran
Date de création
2019-08-13 16:47:46
Dernière modification
2024-02-19 10:58:09




