NAXOS. - Aggidia - 2005
Informations Générales
Numéro de la notice
4782
Année de l'opération
2005
Chronologie
Mots-clés
Basilique - Monastère - Sépulture - Inscription - Lampe - Peinture - Sculpture - Verre - Édifice religieux - Nécropole
Nature de l'opération
Institution(s)
Localisation
Toponyme
Agkidia
Agkidia
Notices et opérations liées
2005
Description
À l’Est de la ville de Naxos (Chora), Ch. Pennas (2e éphorie des antiquités byzantines) rend compte de la fouille menée en 2005, en collaboration avec B. Lambrinoudakis (Université d’Athènes), sur la basilique protobyzantine d’Aghios Stephanos à Aggidia (fig. 1).
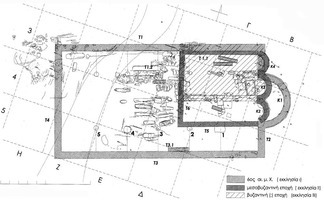
Il s’agit d’une grande basilique à trois nefs (long. 26 m ; larg. 13 m ; fig. 2), sans narthex, avec deux colonnades et une abside semi-circulaire à l’Est (diam. 4,50 m). Des colonnades, cinq bases en marbre (diam. 0,50 m) avec un entraxe de 3 m sont préservées. Les nefs latérales ont une largeur de 2,25 m et la nef centrale de 5,50 m. Le sol de la basilique est en mortier de couleur blanchâtre, installé immédiatement au-dessus du rocher. Dans le sanctuaire, la fosse à relique (egkainion) a livré une boîte en marbre avec un couvercle coulissant (dim. 0,18 x 0,25 x 0,145 m ; fig. 3). Dans la nef, on a trouvé un fragment d’ambon en marbre (fig. 4), dont un fragment similaire a été localisé dans le monastère des « Phraro », voisin. D’autres fragments de marbre sculptés ont été trouvés dans la cour de la ferme au Sud du monastère. Dans le remblai de la basilique, on a recueilli des tessons de verre et des fragments de plaques de verre, des tessons de lampes de type égéen et nord-africain, de la fin du VIIe s. apr. J.-C., ainsi que des fragments de céramique à glaçure et de vases de service (fig. 5).
La basilique protobyzantine a subi des remaniements ultérieurs :
- à l’époque vénitienne, dans la partie Nord-Est de la basilique, on a construit une église plus petite, à trois nefs et probablement à coupole (long. 10,50 ; larg. 9 m). Le mur Nord de cette église est collé au mur Nord de la basilique protobyzantine. De la colonnade Nord, trois colonnes cannelées en marbre sont conservées. De la colonnade Sud restent trois colonnes à fut lisse. Le sol du sanctuaire était pavé de blocs de marbre de remploi.
- dans un troisième état de construction, l’église s’est limitée aux deux nefs Nord. À cet état appartient un fragment de peinture murale (dim. 0,40 x 1,30 m) qui représente des écailles : il entrait certainement dans une composition d’ensemble figurant un saint tuant un dragon.
A l’Ouest de l’église, on a fouillé 20 tombes à fosse, deux tombes à ciste et deux sépultures libres. Les cistes sont construites à l’aide de matériaux de remploi, notamment des tambours de colonnes ioniques, un linteau en marbre portant une croix en relief et l’inscription ΟΜΜΟΟΥCIOC//TRIAC (fig. 6). Les tombes à fosse, creusées dans la roche à une profondeur de 0,30 m, sont recouvertes d’une dalle de calcaire ou de schiste ou de blocs de remploi en marbre. Une monnaie en bronze de l’époque franque trouvée à l’intérieur d’une tombe constitue un terminus post quem pour l’utilisation de la nécropole.
Auteur de la notice
Catherine Bouras
Références bibliographiques
Ch. Pennas, AD 60 (2005), p. 945-947.
Légende graphique :
localisation de la fouille/de l'opération
localisation du toponyme
polygone du toponyme Chronique
Fonctionnalités de la carte :
sélectionner un autre fond de plan
se rapprocher ou s'éloigner de la zone
afficher la carte en plein écran
Date de création
2015-06-10 00:00:00
Dernière modification
2023-03-23 13:15:03
Figure(s)




