GORTYNE - 2006
Informations Générales
Numéro de la notice
203
Année de l'opération
2006
Chronologie
Antiquité - Archaïque - Classique - Hellénistique - Romaine
Mots-clés
Bains - Basilique - Temple - Théâtre - Stoa - Monnaie - Revêtements (mur et sol) - Sculpture - Édifice religieux - Établissement de spectacles - Habitat
Nature de l'opération
Institution(s)
Localisation
Toponyme
Gortyn
Gortyn
Notices et opérations liées
Description
Les campagnes de 2005 et 2006 ont eu lieu dans six secteurs différents :
1) Colline du Prophète Élie. — De nouvelles recherches, menées sous la direction de N. Allegro (université de Palerme), ont été entreprises dans l’habitat géométrique et orientalisant en 2005 et 2006 : sur la terrasse supérieure, on a mis au jour une voie Nord/Sud croisant la rue Est/Ouest (v. BCH 113 [1989], Chron., p. 690), qui atteint actuellement une longueur de 30 m. Le secteur situé plus à l’Ouest semble dépourvu de constructions. Les pièces b1-b2, à l’Ouest de la rue Nord/Sud, témoignent d’une occupation à partir du dernier siècle du IIe millénaire, et de trois phases d’habitat : la phase protogéométrique n’est attestée que par un matériel résiduel, mais l’habitat de la moitié du VIIIe au VIIe s. paraît assez dense et régulier, ce qui suppose un programme de développement urbain.
Dans le secteur oriental, on a découvert une grande cour au sol de terre battue et de fragments de pierre, appartenant à un vaste complexe des VIIIe-VIIe s. qui comprend une façade unitaire au Sud, une pièce couverte et une cour attenante à l’Est, ainsi qu’une grande cour à l’Ouest, dont la partie Sud forme un espace étroit, peut-être un portique (fig. 1-2).
Sur la terrasse inférieure, un puissant mur de terrasse associé à des contreforts rectangulaire permit l’aménagement de la voie Est/Ouest au cours de la dernière phase d’occupation (VIIIe-VIIe s.). Les quelques vestiges hellénistiques, très arasés, doivent être en relation avec les fortifications des IIIe-Ier s. av. J.-C. à l’Est, on a exploré deux pièces d’un édifice VIIIe-VIIe s. bordé par une rampe pavée.
2) Théâtre Pythien. — La poursuite de la mission de F. Ghedini et J. Bonetto (université de Padoue) s’est concentrée en 2005 et 2006 sur l’orchestra et la scène. On a mis au jour des gradins de la cavea, (fig. 3) l’entrée du couloir voûté menant à l’orchestra et un second passage voûté à l’extrémité Nord des gradins. Deux statues féminines (l’une du type d’Héra Borghese, l’autre une Athéna du type Velletri), probablement réutilisées dans une phase tardive du monument, ont été découvertes parmi les décombres de le secteur de la scène. Une tranchée ouverte dans le front de scène a confirmé que le théâtre, abandonné à la fin du IIIe-début IVe s., avait probablement été détruit par le terrible séisme de 365 apr. J.-C. Les secteurs les plus fragiles, comme l’opus sectile en marbre polychrome de l’orchestre, ont été protégés.
3) Secteur du Caput Aquae. — Sous la direction d’E. Lippolis (université de Rome-La Sapienza), un sondage a été réalisé en 2005 dans un point névralgique de la ville ancienne, à l’intersection de deux voies importantes, en marge de l’habitat archaïque et classique et immédiatement à l’Est du sanctuaire d’Apollon Pythien fondé au VIIe s. av. J.-C. Plusieurs monuments à caractère publique s’y sont succédés, dont le plus ancien est un temple d’ordre ionique datant de la période hellénistique, dédié au culte des Nymphes et d’autres divinités (Zeus, Pan). À l’époque flavienne fut bâti un monument honorifique équestre, à l’époque des Antonins un petit temple, puis on y aménagea la structure terminale d’un aqueduc (le Caput Aquae) à laquelle sont associées deux fontaines monumentales qui encadraient la rue et étaient adossées au temple hellénistique. Après le séisme de 365 apr. J.-C., la rue Nord est dotée d’un portique à colonnes et l’on érigea près du temple un grand nymphée rectangulaire, dont l’usage cesse au Ve s. D’autres constructions datent du VIIe s.
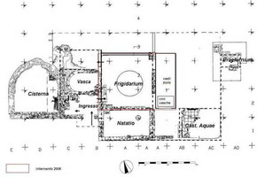
4) Les thermes au Sud du Prétoire. — En 2006, la fouille du complexe (fig. 4-5) découvert en 2003 sous la direction de G. Bejor (université de Milan) a mis au jour le frigidarium, organisé autour d’une pièce carrée (L. 10 m) dont les pilastres indiquent une couverture originelle en voûte d’arête et au sol en opus sectile polychrome particulièrement riche. Au centre, un loutron (diam. 5 m) à trois marches comprenait un sol dallé de marbre blanc et d’ardoise. La pièce centrale ouvrait sur deux bains : un grand quadrangulaire, auquel on accédait entre deux colonnes, et un bain absidal au décor de marbre, qui avait fait l’objet d’une recharge avec un second dallage. Entre ces deux sols se trouvait une abondante céramique d’une phase avancée du Ve s.
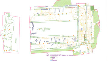
5) Quartier byzantin. — Les fouilles de ce quartier situé entre le temple d’Apollon Pythien et le complexe du « Prétoire » ont été poursuivies en 2006, sous la direction d’E. Zanini (université de Sienne). La connaissance de la topographie du quartier a été améliorée par la mise au jour d’un segment supplémentaire de la route pavée principale d’époque protobyzantine qui traversait le quartier et rejoignait la voie au Nord du Prétoire. Au Nord-Ouest de la rue, on a partiellement fouillé trois pièces appartenant à un vaste édifice, doté d’un grand seuil en pierre, au sol dallé et comprenant un imposant système d’évacuation de l’eau. De l’autre côté de la rue, un espace ouvert précédait une citerne-fontaine. Des sondages réalisés dans l’édifice partiellement exploré lors de la campagne précédente ont confirmé la date de sa construction à la moitié du VIe s., sur plusieurs étages, alors que la zone était précédemment (antiquité tardive) occupée par des bâtiments de dimensions inférieures. Après la moitié du VIe s., les mêmes axes routiers demeurent en usage jusqu’à la fin du VIIe s (fig. 6-7).
6) Basilique de Mitropoli (fig 8)
Les campagnes de fouilles se sont poursuivies en 2005 et 2006, sous la direction de R. Farioli (université de Bologne) et de E. Borboudakis (13e Éphorie des Antiquités byzantines). Elles ont mis au jour le sol des nefs sud et le narthex, pavé de grandes dalles calcaires. Dans la première et la deuxième nef se trouvaient respectivement deux bancs angulaires et un banc en U contre le mur. Ce dernier fut aménagé directement sur le sol dallé, probablement dans une deuxième phase, comme en atteste également le matériel composite utilisé pour sa construction.
Des mosaïques aux décors géométriques et figuratifs (animaux et plantes, ainsi que le nom de l’archevêque BETRANIOS) proviennent de ce secteur (AR 53 [2007], p. 110). Dans le narthex, près du mur périmétral ( ?), de nombreux fragments de dalles de marbre proviennent du décor mural en opus sectile. Près du mur séparant le narthex de la nef, on a découvert un follis de Justinien d’un monnayage de Constantinople. Dans le secteur absidal oriental, une pièce trapézoïdale pavée de tuiles, principalement de grandes dimensions, constitue avec la salle attenante un ajout, probablement du Haut Moyen-Âge, à la construction justinienne du synthronon-péribole.
Des mosaïques aux décors géométriques et figuratifs (animaux et plantes, ainsi que le nom de l’archevêque BETRANIOS) proviennent de ce secteur (AR 53 [2007], p. 110). Dans le narthex, près du mur périmétral ( ?), de nombreux fragments de dalles de marbre proviennent du décor mural en opus sectile. Près du mur séparant le narthex de la nef, on a découvert un follis de Justinien d’un monnayage de Constantinople. Dans le secteur absidal oriental, une pièce trapézoïdale pavée de tuiles, principalement de grandes dimensions, constitue avec la salle attenante un ajout, probablement du Haut Moyen-Âge, à la construction justinienne du synthronon-péribole.
Au Nord de la basilique, on a exploré une rotonde identifiée comme une fontaine ou un baptistère de la fin du Ve-début VIe s. À l’intérieur, un « ambulacro » la reliait probablement à l’aile Nord de la basilique. Plusieurs colonnes, chapiteaux et des centaines de sectilia en marbre y ont été découverts.
Auteur de la notice
Maia POMADERE
Références bibliographiques
Rapport d'activités de l'École italienne.
Légende graphique :
localisation de la fouille/de l'opération
localisation du toponyme
polygone du toponyme Chronique
Fonctionnalités de la carte :
sélectionner un autre fond de plan
se rapprocher ou s'éloigner de la zone
afficher la carte en plein écran
Date de création
2009-12-01 00:00:00
Dernière modification
2024-02-15 09:33:02
Figure(s)




