Ancient Corinth - 2012
Informations Générales
Numéro de la notice
17155
Année de l'opération
2012
Chronologie
Mots-clés
Nécropole - Voierie - Sépulture - Inscription - Lampe - Parure/toilette - Revêtements (mur et sol) - Métal - Os
Nature de l'opération
Institution(s)
Localisation
Toponyme
Archaia Korinthos, Palaia
Archaia Korinthos, Palaia
Notices et opérations liées
2012
Description
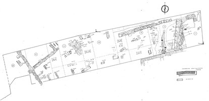
Ancient Corinth, Motorway between Eleusis, Corinth, Patras, Pyrgos, Tsakona (Olympia Motorway). Vasileios Papathanasiou (LΖ’ EPKA) reports on the extensive excavations held during the construction for Olympia Motorway. The excavations reported here were the ones that took place on the S side of the junction connecting the main axis of the National Motorway to the route leading to ancient Corinth (kilometric positions 0+409 – 0+540), as well as the ones parallel to the main axis of the National Motorway (kilometric positions 1+500-1+864). Both these general areas revealed extensive ancient remains, dated almost all throughout the ancient times.
The Junction of Ancient Corinth presented three areas of interest, in different kilometric positions.
The first one (kilometric position 0+409-0+441) (fig. 1) revealed a late Roman cemetery, containing 53 burials. Most of them were tile-roof graves, but there were also cist graves, jar-burials, larnaxes (fig. 2) and one urn. The graves were all dated around the same time, with the exception of the larnaxes, which were dated between the late sixth and early fifth century BC.
The second area (kilometric position 0+441-0+509) (fig. 3) also revealed late Roman burials of similar nature. A chamber/tile roof grave found in this area was particularly interesting, due to its construction and the grave-goods found within it. This grave’s entrance was a staircase on its SE side (fig. 4), leading to a small “hall” before the grave’s entrance. The chamber’s internal walls had two conchs on three of its walls, and its roof had not collapsed, revealing an air-duct. Eleven skulls were found within the chamber, indicating that the individuals within it were at least that many. The grave-goods were mostly pottery vases, of great quality.
The third area (kilometric position 0+509-0+540) (fig. 5) revealed part of an ancient street, a worship area (dated during the late Geometric-Archaic times), parts of walls, parts of a waterpipe, and eleven burials (fig. 6).
The main axis of the National Motorway was excavated within an area called Heliotomylos or Helioti Mylos. It presented nine areas of interest, in different kilometric positions.
The area between kilometric positions 1+500 and 1+509 (figs. 7, 8) revealed architectural remains containing multiple spolia, amongst which was a part of an ionic column head, part of a Latin inscription, and an inscribed archaic construction stone. It was dated in the Roman times. Part of an ancient cemetery was located οn the W side of the retaining wall. It was dated between the Geometric and the Roman times. Of the 86 tombs that were investigated, 44 were sarcophagi, 41 were cist graves, hut-shaped graves and box-shaped graves, while there was also a burial in a pit. Several tombs dated within the Archaic and Classical eras had been reused for burials in Roman times. Amongst the grave goods were pottery vessels [Attic krater with red-figure decoration (fig. 9), pyxis vessels, skyphoi, lykythoi], a clay mask, some figurines, coins etc. A Roman arched chamber tomb was found amongst the graves of this cemetery (Fig. 10a, b). This tomb preserved the largest part of the arch of its roof. The four-step staircase which led to its entrance was located on the S side. Inside, a total of three burials were excavated. Two of the burials were pits on the ground, and the other one was a sarcophagus. The walls of the chamber bore painted decoration, fragmentarily preserved. Amongst the findings of the findings of the burials were some golden objects (Fig. 11).
The area between kilometric positions 1+510 and 1+550 (fig. 12) revealed also part of Roman cemetery and late Geometric-Archaic architectural remains.
The cemetery was a continuation to the Roman cemetery excavated in the previous area described. It contained 20 burials, similarly arranged as the burials in the cemetery found in the previous area. One of the tombs was an arched roof subterranean chamber (fig. 13). The chamber bore similarities to the Roman chamber found in the previous area. It contained sherds of Roman pottery, bronze coins, animal bones and an intact glass perfume vessel. Two larnaxes found inside the chamber preserved traces of painted decoration on their walls (mostly floral and vegetal decoration on garlands). One of them was completely covered in painted decoration. An early restoration process revealed the portrait of a female painted on the headrest (fig. 14). She was pictured wearing her hair in a melon-shaped hairstyle, and her ears were decorated with golden earrings, painted with yellowish color (fig. 15). Her body was covered with a red sheet, decorated with yellow, blue and white stripes. The lowest part of the larnax was painted with a white stripe, decorated with a small box and other decoration patterns (fig. 16). Every wall on the chamber bore painted decoration as well, created using the technique of fresco. The patterns painted were mostly garlands with vegetal and floral decoration, but there were also depictions of vessels (fig. 17).
The cemetery was also in use during the late Geometric – Archaic times, and there were indications that it was used by an important clan of the Archaic Corinth elite.
Between the kilometric positions 1+638 and 1+658 the excavation revealed a Mycenaean building (building no. 10) that was the earliest building of the excavated Mycenaean settlement in the area. It was dated between the 17th and the 13th centuries BC and had three construction phases. One asaminthos (bathtub) was located in the middle of the main room (fig. 18). Parts of this building were located underneath the Roman phases of the settlement.
It was made clear that the latest phase of the Mycenaean settlement in the area excavated was dated in the second half of the thirteenth century BC. The settlement was densely populated during the thirteenth century and it extended all over the excavated area. The earlier phases revealed fine quality pottery and various constructions made of clay.
[Entry created by E. Kourti]
The Junction of Ancient Corinth presented three areas of interest, in different kilometric positions.
The first one (kilometric position 0+409-0+441) (fig. 1) revealed a late Roman cemetery, containing 53 burials. Most of them were tile-roof graves, but there were also cist graves, jar-burials, larnaxes (fig. 2) and one urn. The graves were all dated around the same time, with the exception of the larnaxes, which were dated between the late sixth and early fifth century BC.
The second area (kilometric position 0+441-0+509) (fig. 3) also revealed late Roman burials of similar nature. A chamber/tile roof grave found in this area was particularly interesting, due to its construction and the grave-goods found within it. This grave’s entrance was a staircase on its SE side (fig. 4), leading to a small “hall” before the grave’s entrance. The chamber’s internal walls had two conchs on three of its walls, and its roof had not collapsed, revealing an air-duct. Eleven skulls were found within the chamber, indicating that the individuals within it were at least that many. The grave-goods were mostly pottery vases, of great quality.
The third area (kilometric position 0+509-0+540) (fig. 5) revealed part of an ancient street, a worship area (dated during the late Geometric-Archaic times), parts of walls, parts of a waterpipe, and eleven burials (fig. 6).
The main axis of the National Motorway was excavated within an area called Heliotomylos or Helioti Mylos. It presented nine areas of interest, in different kilometric positions.
The area between kilometric positions 1+500 and 1+509 (figs. 7, 8) revealed architectural remains containing multiple spolia, amongst which was a part of an ionic column head, part of a Latin inscription, and an inscribed archaic construction stone. It was dated in the Roman times. Part of an ancient cemetery was located οn the W side of the retaining wall. It was dated between the Geometric and the Roman times. Of the 86 tombs that were investigated, 44 were sarcophagi, 41 were cist graves, hut-shaped graves and box-shaped graves, while there was also a burial in a pit. Several tombs dated within the Archaic and Classical eras had been reused for burials in Roman times. Amongst the grave goods were pottery vessels [Attic krater with red-figure decoration (fig. 9), pyxis vessels, skyphoi, lykythoi], a clay mask, some figurines, coins etc. A Roman arched chamber tomb was found amongst the graves of this cemetery (Fig. 10a, b). This tomb preserved the largest part of the arch of its roof. The four-step staircase which led to its entrance was located on the S side. Inside, a total of three burials were excavated. Two of the burials were pits on the ground, and the other one was a sarcophagus. The walls of the chamber bore painted decoration, fragmentarily preserved. Amongst the findings of the findings of the burials were some golden objects (Fig. 11).
The area between kilometric positions 1+510 and 1+550 (fig. 12) revealed also part of Roman cemetery and late Geometric-Archaic architectural remains.
The cemetery was a continuation to the Roman cemetery excavated in the previous area described. It contained 20 burials, similarly arranged as the burials in the cemetery found in the previous area. One of the tombs was an arched roof subterranean chamber (fig. 13). The chamber bore similarities to the Roman chamber found in the previous area. It contained sherds of Roman pottery, bronze coins, animal bones and an intact glass perfume vessel. Two larnaxes found inside the chamber preserved traces of painted decoration on their walls (mostly floral and vegetal decoration on garlands). One of them was completely covered in painted decoration. An early restoration process revealed the portrait of a female painted on the headrest (fig. 14). She was pictured wearing her hair in a melon-shaped hairstyle, and her ears were decorated with golden earrings, painted with yellowish color (fig. 15). Her body was covered with a red sheet, decorated with yellow, blue and white stripes. The lowest part of the larnax was painted with a white stripe, decorated with a small box and other decoration patterns (fig. 16). Every wall on the chamber bore painted decoration as well, created using the technique of fresco. The patterns painted were mostly garlands with vegetal and floral decoration, but there were also depictions of vessels (fig. 17).
The cemetery was also in use during the late Geometric – Archaic times, and there were indications that it was used by an important clan of the Archaic Corinth elite.
Between the kilometric positions 1+638 and 1+658 the excavation revealed a Mycenaean building (building no. 10) that was the earliest building of the excavated Mycenaean settlement in the area. It was dated between the 17th and the 13th centuries BC and had three construction phases. One asaminthos (bathtub) was located in the middle of the main room (fig. 18). Parts of this building were located underneath the Roman phases of the settlement.
It was made clear that the latest phase of the Mycenaean settlement in the area excavated was dated in the second half of the thirteenth century BC. The settlement was densely populated during the thirteenth century and it extended all over the excavated area. The earlier phases revealed fine quality pottery and various constructions made of clay.
[Entry created by E. Kourti]
Auteur de la notice
Michael Loy
Références bibliographiques
ADelt 67 (2012), Chr., 295-321
Légende graphique :
localisation de la fouille/de l'opération
localisation du toponyme
polygone du toponyme Chronique
Fonctionnalités de la carte :
sélectionner un autre fond de plan
se rapprocher ou s'éloigner de la zone
afficher la carte en plein écran
Date de création
2022-01-02 18:22:18
Dernière modification
2022-01-02 18:22:39
Figure(s)




